Active Projects

Building Better Care from the ground up

Our commitment to quality construction in the healthcare sector continues to grow. Below, we’re proud to showcase several of our current projects in progress — from new skilled nursing facilities to major expansions. These aerial views and site plans offer a glimpse into the scale, precision, and care we bring to every build.

New Facility Ground-Up Construction

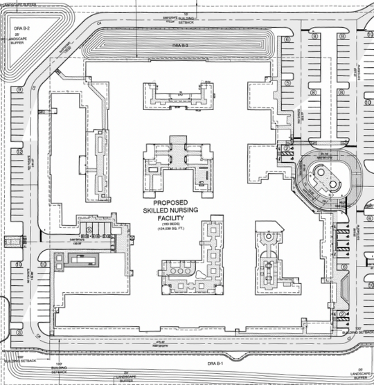
Leesburg Skilled Nursing Facility

We’ve officially broken ground on a brand-new 166-bed skilled nursing facility in Leesburg, Florida. This site is being developed from the ground up with a focus on long-term care capacity, modern safety standards, and future-ready infrastructure.

North Corner Rendering – Leesburg Project
Entry Rendering – Leesburg Project
Courtyard Rendering – Leesburg Project
Clermont, Florida Project – Skilled Nursing Expansion

Lakes of Clermont Health & Rehabilitation Center

This 40-bed expansion at the Lakes of Claremont facility adds critical capacity to an existing skilled nursing center. Our team is carefully integrating the new wing with the original structure, using proven masonry methods and quality materials that meet healthcare standards for safety, accessibility, and durability.

To complement the structural core, we incorporate refined masonry details throughout the build. From stone veneers to durable facades, each material is selected to match the aesthetic and functional needs of a medical care setting — blending form, strength, and longevity.

98-08 QUEENS BOULEVARD – REGO PARK, QUEENS

Construction is underway on a new 22-story residential tower in the heart of Rego Park, Queens, bringing modern design, quality materials, and community-focused amenities to one of New York City’s most dynamic neighborhoods.

Urban Residential Tower Development

Urban High-Rise Residential Development

This mixed-use development at 98-08 Queens Boulevard features a six-story podium and a 22-story tower designed with a blend of gray cementitious cladding and a reflective glass curtain wall. The tower will offer a range of apartment layouts from studios to two-bedroom homes. Residents will enjoy access to thoughtfully curated amenities, including a roof deck, fitness center, yoga room, and a communal lounge — all crafted to enhance urban living in Queens.

IMG_1847 (2)
IMG_1846 (1)

16 FIFTH AVENUE – GREENWICH VILLAGE, MANHATTAN

Construction is underway on a new 19-story residential building located on Fifth Avenue in the heart of Greenwich Village, Manhattan. This 241-foot-tall development will feature 14 luxury condominium units designed by Robert A.M. Stern Architects and Hill West Architects, and developed by Madison Realty Capital.

High-Rise Residential Tower

Luxury Condominium Development – Manhattan

Situated on an interior lot between East 8th and 9th Streets—just north of Washington Square Park—the project brings refined architectural detail and exclusivity to one of New York’s most iconic neighborhoods.

IMG_1852
IMG_1850

Stay tuned for more progress photos

Ready to Start Your Project?

If you need a partner to handle your structural concrete from the ground up, TLP Structures has the expertise to make it happen. We’re ready to take on projects of any scale with precision, speed, and proven results.